Основные характеристики и особенности
- в аренду предоставляются готовые к заселению помещения;
- Отделка помещений - евростандарт, полы – ламинат.
- Центральная система приточно-вытяжной вентиляции и кондиционирования, централизованное отопление.
- Тип этажа - коридорная система, с/у на этаже либо в каждом блоке.
- Для решения проблемы питания сотрудников организована работа небольшого кафе и ресторана, предлагающих широкий выбор блюд по доступным ценам.
Комфортно
- Семиэтажный бизнес центр класса «В+» на ул. Шумкина 20, общей площадью 8300 кв.м., отвечающий требованиям всех современных мировых стандартов.
- Отделка офисов выполнена по мировым стандартам.
- Комплекс оснащён всеми необходимыми современными системами жизнеобеспечения, которые создают прекрасные условия для работы.
- Оптимальный температурный режим в офисах создаётся благодаря работе систем приточно-вытяжной вентиляции и кондиционирования воздуха. В холодное время года работает система централизованного отопления. Установлены окна со стеклопакетами.
Удобно
- Предлагаются разнообразные по типу и размеру офисы. Высота потолков – от 2,7 м. до 3,5 м.
- Для удобного перемещения по комплексу, работают пассажирские и грузопассажирские лифты.
- Бизнес-центр имеет четыре входа.
- Рядом с бизнес-центром удобная транспортная развязка.
- Собственная охраняемая парковка на 80 машиномест.
- Все офисы Бизнес-центра на ул. Шумкина 20 оборудованы оптоволоконными коммуникационными линиями для телефонной связи и высокоскоростного доступа, к сети Интернет, что делает работу по поиску информации в глобальной сети лёгкой и простой. В Здании представлен оператор Мегафон.
- Предлагаемые в аренду помещения разнообразной планировки: свободной, смешанной, коридорно-кабинетной.
- Профессиональная управляющая компания.
Безопасно
- Безопасность объекта находится на высоком уровне и поддерживается при помощи систем видеонаблюдения, как внутри комплекса, так и снаружи, а также круглосуточной охраной.
- Согласно нормам пожарной безопасности в здании установлена охранно-пожарная сигнализация.
Условия аренды
- Срок аренды от 11 месяцев с возможностью пролонгации.
- Стоимость аренды офисов от 12 000 р. за 1 кв. м в год, включая коммунальные платежи, эксплуатационные расходы, охрану и клининг.
- Условия оплаты: при подписании договора оплачивается первый месяц аренды + гарантийный взнос в размере месячной арендной платы, далее помесячно.
Местоположение
-
От станции метро «Сокольники» - 7 минут пешком. На а/м удобный проезд.
Карту Вы можете посмотреть здесь
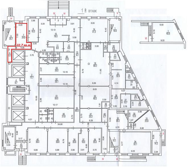
Свободные площади:
- 32,7 кв.м. Стоимость - 26 000 руб./кв.м./год (70 850 руб./мес.)
- 265 кв.м. ПСН под общепит (состоит из двух залов: 90 кв.м. и 51 кв.м., +кухня). Стоимость 419 584 руб./мес.)

























